【売買物件】YO2階戸建てー田子
物件詳細
売買価格
200万円
土地面積
宅地62.76㎡(約19坪) 畑303㎡(約91.6坪) 別途宅地及び公衆用道路2筆有
床面積
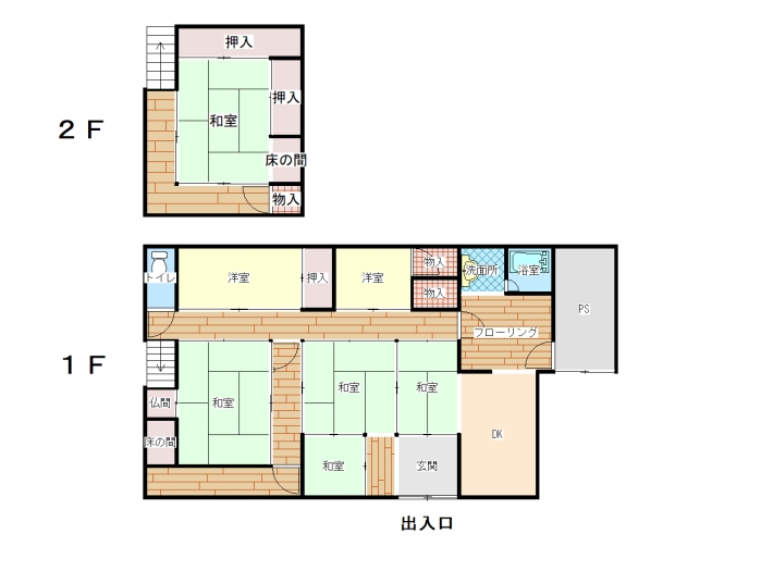
居宅 1階:101.24㎡ 2階:29.40㎡
間取り
5LDK+倉庫
| 所在地 | 串本町田子119-4 |
| 交通 | JR田子駅~車2分、徒歩10分 |
| 構造 | 木造瓦葺2階建 |
| 駐車場 | 有り |
| 近隣施設 | |
| 築年数 | 昭和37年 |
| 取引態様 | 媒介 |
| 備考 | 残置物は売主にて処分, 農地法第3条許可申請必要 |
売買価格
200万円
土地面積
宅地62.76㎡(約19坪) 畑303㎡(約91.6坪) 別途宅地及び公衆用道路2筆有
床面積
居宅 1階:101.24㎡ 2階:29.40㎡
間取り
5LDK+倉庫
| 所在地 | 串本町田子119-4 |
| 交通 | JR田子駅~車2分、徒歩10分 |
| 構造 | 木造瓦葺2階建 |
| 駐車場 | 有り |
| 近隣施設 | |
| 築年数 | 昭和37年 |
| 取引態様 | 媒介 |
| 備考 | 残置物は売主にて処分, 農地法第3条許可申請必要 |
